Academic Work
June 2011 - June 2013
Eugene + Portland, OR
University of Oregon
Masters of Architecture
Elevation Studies — The Dalles, Oregon
DIS Study Abroad Studio —
Soren Kiekegaard Museum & Sculpture Lapidarium
Copenhagen, Denmark
Social Justice / Lyceum Competition —
Mobile Air Quality Monitors and Data Visualizers
Eugene, Oregon
Education Studio —
Suzuki Music school for gifted children
Eugene, Oregon
Design-Build Studio —
Structural Design and Foundation Build for Outdoor Montessori Classroom
Eugene, Oregon
![]()
Hotel Renovation — with Richard Nelson
Bike Storage system in constrained alleyway
Portland, Oregon
Residential Studio —
House, minimal dwelling and birdwatching tower
Dexter Lake, Oregon
Luminaire Design —
with Kellen Shipley, Matthew Philbrook,
Richard Nelson and Ramzy Farouki
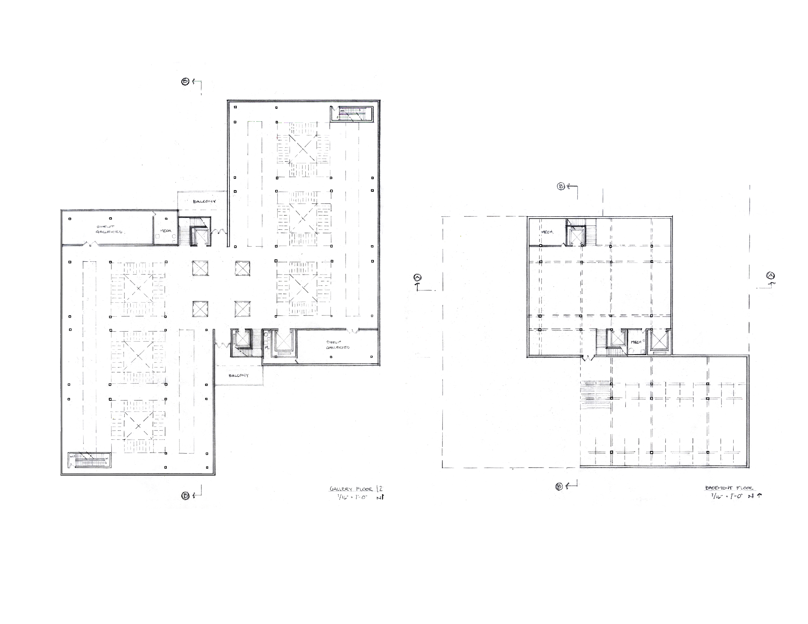
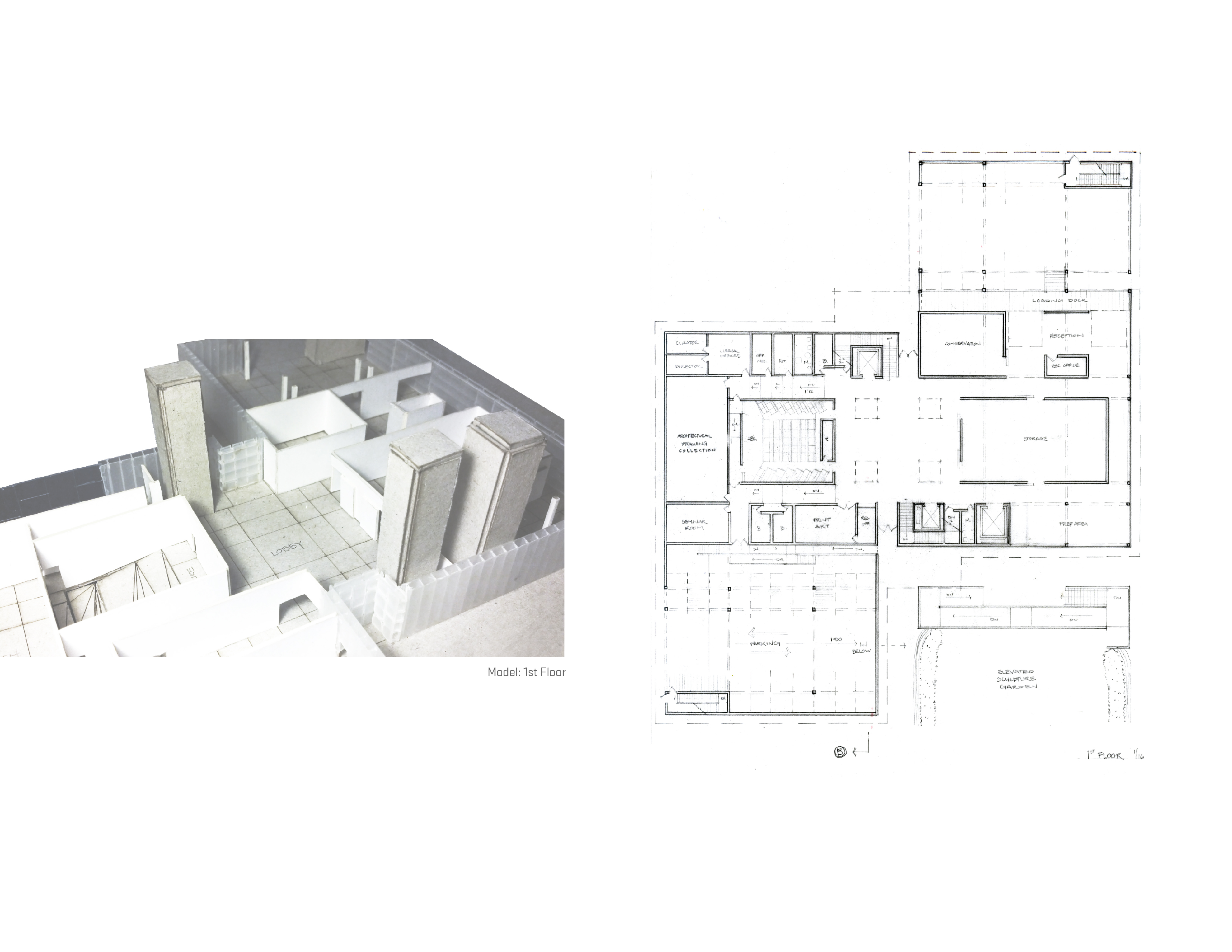
USCB Art Museum Competion —
Gary Moye led Design Studio
Santa Barbara, California
Urban Studio —
Culinary Hub to support the Saturday Market
Portland, Oregon
Visualizing Data —
Dimensional state data converted into tactile form to teach equity disparities
Urban Design Studio —
Village Green and Urban Revitalization
The Dalles, Oregon
Urban Planning Studio —
Steet Design and Neighborhood-specific Form Based Code
Bellingham, WA - Western Washington University
Academic Pen+Marker Drawings
Soren Kiekegaard Museum & Sculpture Lapidarium
Copenhagen, Denmark
Social Justice / Lyceum Competition —
Mobile Air Quality Monitors and Data Visualizers
Eugene, Oregon
Education Studio —
Suzuki Music school for gifted children
Eugene, Oregon
Design-Build Studio —
Structural Design and Foundation Build for Outdoor Montessori Classroom
Eugene, Oregon

Hotel Renovation — with Richard Nelson
Bike Storage system in constrained alleyway
Portland, Oregon
Residential Studio —
House, minimal dwelling and birdwatching tower
Dexter Lake, Oregon
Luminaire Design —
with Kellen Shipley, Matthew Philbrook,
Richard Nelson and Ramzy Farouki
USCB Art Museum Competion —
Gary Moye led Design Studio
Santa Barbara, California
Urban Studio —
Culinary Hub to support the Saturday Market
Portland, Oregon
Visualizing Data —
Dimensional state data converted into tactile form to teach equity disparities
Urban Design Studio —
Village Green and Urban Revitalization
The Dalles, Oregon
Urban Planning Studio —
Steet Design and Neighborhood-specific Form Based Code
Bellingham, WA - Western Washington University
Academic Pen+Marker Drawings